Pinnacle International

0000000000 | testinfo@pinnacleinternational.ca
Homer St,
Suite 300-911,
Vancouver, BC, V6B 2W6
Public Sales: 2
VIP Sales: 0
Planning: 12
Coming Soon: 0
Sold Out: 17

Developer Banner   Size 724px X 288px
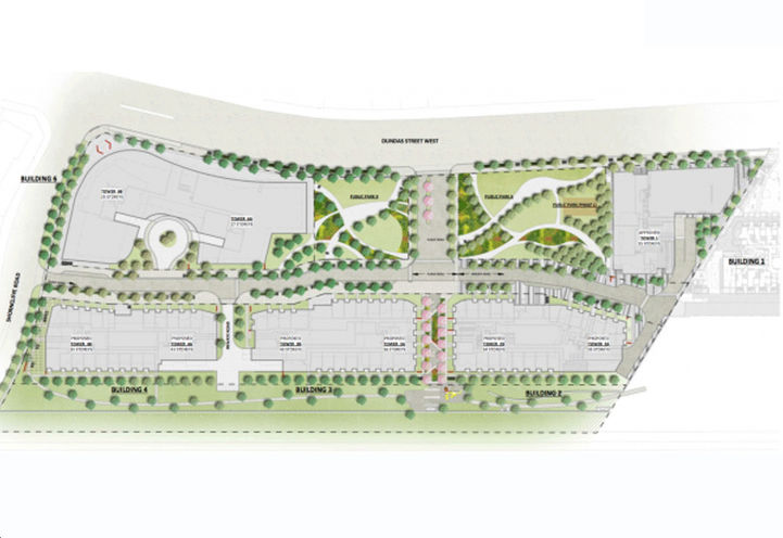
Skyline View of SkyTower Condos Amidst the OvercastSkyTower Condos 2 by Pinnacle InternationalAspen at Pinnacle Etobicoke Condos Exterior View of TowersLooking Southeast Towards Pinnacle EtobicokeLooking South Towards Pinnacle EtobicokeLooking Eastward Towards Pinnacle EtobicokeStreet View of Pinnacle EtobicokeProposed Site Plan For Pinnacle EtobicokeLooking West Through the Park Towards Pinnacle EtobicokeLooking South Through the Park at Pinnacle Etobicoke
Description

Pinnacle International is one of Canadas leading builders of luxury condominium residences, hotels, and commercial developments. Based in Vancouver, British Columbia, Pinnacle International has been involved in development, design, construction and management for over three decades. Pinnacles portfolio includes landmark locations in Vancouver, Toronto and San Diego, built with an eye to our signature style. A Pinnacle community is always place-perfect, with an plan of its own.


Location, Project
Search Sort
Displaying: 
Star grey
This search has been successfully saved!
Saved Search
Please select a past search to load.
Error!!!
The requested content cannot be loaded. Please try again later.