SHARE
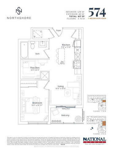
500 Plains Road E, Burlington