Compare Nearby Developments

Celeste Condos

Precon
MOVE IN Jan 2027 - From $773,990 - $1,293,990
to see pricing. Subscribe to BuyLine to get promo alerts.

1 of 1
Featuring Renderings by Aareas Interactive Inc.
Next Steps
In your real estate journey

Don't need to speak to anyone yet

ProfileGet expert advice

I want to register for the promo

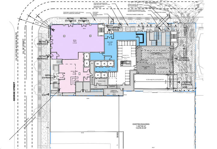
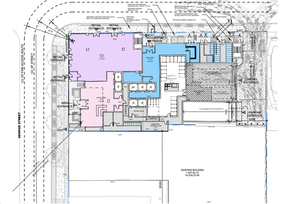
Celeste Condos is a New Condo development by Alterra Group located at George St & Richmond St E, Toronto.

Celeste Condos is taking downtown living to new heights. This brand new, contemporary high-rise residence located at Richmond and George, in the heart of the downtown core will provide residents with a higher love for their surroundings. Boasting near-perfect Walk, Transit, and Bike Scores, residents are conveniently surrounded by world-class amenities, transit options, prestigious post-secondary educational institutions, and major employment hubs all while providing stunning city skyline views, Celeste Condos will be the perfect place to live, play, work, and learn.

A perfect Transit Score indicates that residents of Celeste Condos will be just mere steps away from world-class transportation options to help them commute throughout the downtown core and travel throughout the city quickly and efficiently. Four different TTC streetcar routes conveniently run just a short walk away from home, three different TTC bus routes also run nearby, and Queen subway is also located within walking distance. The newly proposed Ontario Line subway will also run nearby.

With easy access to Toronto’s underground PATH system and dedicated bike lanes within the downtown core, there are many more options for residents of Celeste Condos to get around and explore their surroundings. Getting to work or school will be an extremely efficient commute no matter what form of transportation is used.

The best of the best downtown lifestyle amenities surrounds Celeste Condos. Boasting a near-perfect Walk Score residents can enjoy world-class dining, shopping, and entertainment options all close to home. Major downtown attractions including Yonge/Dundas Square, CF Eaton Centre, St. Lawrence Market, The Distillery District, and the city’s vibrant waterfront can all be accessed within walking distance of home.

Conveniently situated across the street from George Brown College and just a short commute to Ryerson University and OCAD University, Celeste Condos makes for the perfect accommodations for post-secondary students. With limited on-campus housing available, many students will look elsewhere for housing while they complete their studies. Young professionals will also love being located just minutes away from major downtown employment hubs including the Financial District and Hospital Row. East Harbour is also undergoing major redevelopment and will be easily accessible to residents with the addition of the new Ontario Subway Line.

Trusted by homebuyers for over 35 years. Alterra’s success is built upon a commitment to customer service and satisfaction that goes far above and beyond conventional Industry standards. With more than 5,000 homes and award-winning condominiums to our credit. Alterra has established a well-deserved reputation for creating legendary communities all across the Greater Toronto Area

Diamond Corp, a Toronto-based land development company has been providing land development consulting services to major Canadian development firms since its inception in 2007. The Diamond Corp team is committed to quality and innovation and has a proven track record in the planning and development process.

Celeste Condos Specs
Number of Storeys
Total Number of Suites
Suites Starting Floor
Upper Number of Levels
Est. Building Size
Number of Suites/Floor
Floor Plans
Suite Size Range
Ceiling Height
Price / sq ft from
Parking Price
Locker Price
% Sold
Architects
Interior Designer
Amenities
Game Room , Pet Services , Other , Terrace , Electric Vehicle Friendly , Fitness , Lounge , Cycle-Friendly , Concierge , Barbeques , Party Room
Maintenance Fees
Est. Maint
Locker Maint
Parking Maint
Est. Property tax
Notes:
Important Dates
Est. Occupancy
VIP Launch
Public Launch
Const. Start
Const. Completion
Deposit Structure
Total Min. Deposit
Deposit Notes
Development Levies
Assignment Policy
 

*Last Updated on Nov 18, 2024 by CondoNow.Please see the CondoNow Terms of Use for full disclosure. All information, prices, terms and conditions subject to change without notice. E. and O.E.
Contact your Agent or Sales Centre to get updated or missing information, and confirm pricing and availability.
Register & Follow
Celeste Condos 121 George St M5A 2N4 ON Toronto
43.6526817 -79.3712486
Alterra Group
Celeste Condos Celeste Condos is taking downtown living to new heights. This brand new, contemporary high-rise residence located at Richmond and George, in the heart of the downtown core will provide residents with a higher love for their surroundings. Boasting near-perfect Walk, Transit, and Bike Scores, residents are conveniently surrounded by world-class amenities, transit options, prestigious post-secondary educational institutions, and major employment hubs all while providing stunning city skyline views, Celeste Condos will be the perfect place to live, play, work, and learn. A perfect Transit Score indicates that residents of Celeste Condos will be just mere steps away from world-class transportation options to help them commute throughout the downtown core and travel throughout the city quickly and efficiently. Four different TTC streetcar routes conveniently run just a short walk away from home, three different TTC bus routes also run nearby, and Queen subway is also located within walking distance. The newly proposed Ontario Line subway will also run nearby. With easy access to Toronto’s underground PATH system and dedicated bike lanes within the downtown core, there are many more options for residents of Celeste Condos to get around and explore their surroundings. Getting to work or school will be an extremely efficient commute no matter what form of transportation is used. The best of the best downtown lifestyle amenities surrounds Celeste Condos. Boasting a near-perfect Walk Score residents can enjoy world-class dining, shopping, and entertainment options all close to home. Major downtown attractions including Yonge/Dundas Square, CF Eaton Centre, St. Lawrence Market, The Distillery District, and the city’s vibrant waterfront can all be accessed within walking distance of home. Conveniently situated across the street from George Brown College and just a short commute to Ryerson University and OCAD University, Celeste Condos makes for the perfect accommodations for post-secondary students. With limited on-campus housing available, many students will look elsewhere for housing while they complete their studies. Young professionals will also love being located just minutes away from major downtown employment hubs including the Financial District and Hospital Row. East Harbour is also undergoing major redevelopment and will be easily accessible to residents with the addition of the new Ontario Subway Line. Trusted by homebuyers for over 35 years. Alterra’s success is built upon a commitment to customer service and satisfaction that goes far above and beyond conventional Industry standards. With more than 5,000 homes and award-winning condominiums to our credit. Alterra has established a well-deserved reputation for creating legendary communities all across the Greater Toronto Area Diamond Corp, a Toronto-based land development company has been providing land development consulting services to major Canadian development firms since its inception in 2007. The Diamond Corp team is committed to quality and innovation and has a proven track record in the planning and development process. 416-363-3041 https://cnrelease.247salescenter.com/Celeste-Condos/images/Celeste-Condos-thumbnail.jpg 121 George St
5 0 7
Profiler Name
Choose a star to rate
  • A verified user
     
  • ZOWN REALTY INC.
    Amazing location. Great investment opportunity 
  • ROYAL STAR REALTY INC
     
  • ROYAL STAR REALTY INC
     
  • CENTURY 21 GREEN REALTY INC.
     
  • HOMELIFE NEW WORLD REALTY INC
     
  • A verified user
     
Thank You
Thanks for following
Error!!!
The requested content cannot be loaded. Please try again later.